Loading...

Mẫu nhà ống 1 tầng có gác lửng chi phí 500 triệu đồng

03/04/2026
774

Phối cảnh nhà ống 1 tầng lửng chi phí 500 triệu

Có thể thấy rằng nói đến nhà ống không còn gì xa lạ với mọi người bởi những tính năng ưu việt của nó mang lại sẽ đem tới cho bạn một không gian sống thoải mái và tiện nghi nhất.

Nhưng không phải ai cũng có đủ tài chính để thiết kế một ngôi nhà cao tầng. Và hôm nay chúng tôi gửi tới các bạn một mẫu nhà ống 1 tầng có gách lửng với chi phí 500 triệu đồng phù hợp với nhiều gia đình có kinh tế vừa phải.

Ngôi nhà được thiết kế đơn giản, không quá cầu kỳ những từng chi tiết trong thiết kế đều rất tính tế và sắc nét. Sự kết hợp hài hòa giữa thiên nhiên xanh cùng với ban công thoáng mát đã tạo nên một nơi thư giãn tuyệt vời cho chủ nhà. Thêm vào đó nữa là màu sắc nhẹ nhàng khiến cho tổng thể hài hòa và cân đối.

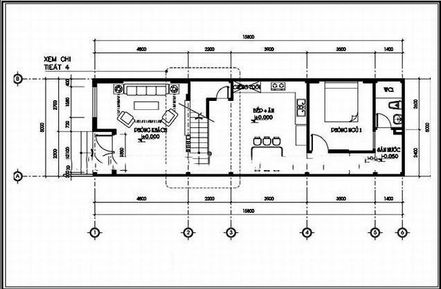
Mặt bằng thiết kế tầng 1 nhà ống 1 tầng + lửng giá 500 triệu

Tầng 1 của ngôi nhà được thiết kế phòng khách, phòng ăn và phòng ngủ. Tất cả được thiết kế thoáng mát gọn gàng nên khi bước chân vào ngôi nhà ta không còn cảm giác chất chội nữa mà thay vào đó là một không gian thoáng  đãng và yên bình.

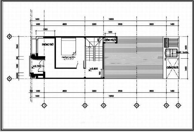
Mặt bằng tầng lửng của nhà ống

Tầng 2 (tầng lửng) của ngôi nhà được thiết kế phòng thờ để thể hiện lòng thành kính của chủ nhà đến tổ tiên. Và thêm nữa ở trên đó được thiết kế thêm một phòng ngủ để các thành viên trong gia đình đều có không gian riêng để nghỉ ngơi và thư giãn. Và tất nhiên là ở đây được thiết kế giếng trời để lấy ánh sáng và gió tự nhiên vào nhà khiến cho ngôi nhà của bạn lưu thông không khí rất tốt.

Chỉ với chi phí 500 triệu bạn đã có được một ngôi nhà như mong muốn với công năng sử dụng đầy đủ, tiện nghi, không gian nghỉ ngơi thư giãn thoải mái đã làm cho bạn có được ngôi nhà của riêng mình. Đó là toàn bộ phối cảnh và mặt bằng kỹ thuật mà chúng tôi gửi tới bạn để tham khảo. Nếu bạn thích có thể lấy làm mẫu thiết kế nhà của mình. Hoặc muốn được thiết kế theo phong cách khác thì hãy liên hệ với chúng tôi để được các KTS tư vấn và thiết kế cho bạn. Thân.

Công ty CP XD & TM Kiến Tạo Việt

 

  • Chia sẻ qua viber bài: Mẫu nhà ống 1 tầng có gác lửng chi phí 500 triệu đồng
  • Chia sẻ qua reddit bài:Mẫu nhà ống 1 tầng có gác lửng chi phí 500 triệu đồng
Danh sách tin tức 

Tin tức nổi bật 

Dự án nổi bật

Dream Home Riverside

Lê Đức Thọ, Phường 13, Gò Vấp, Hồ Chí Minh

Eco Dream Nguyễn Xiển

Nguyễn Xiển, Xã Tân Triều, Huyện Thanh Trì, Hà Nội

Sunshine Avenue

41, Phường 16, Quận 8, Hồ Chí Minh

Florence Mỹ Đình

Trần Hữu Dực, Phường Mỹ Đình 1, Quận Nam Từ Liêm, Hà Nội

CTM Building - 299 Cầu Giấy

Cầu Giấy, Quận Cầu Giấy, Hà Nội

Tin đăng nổi bật